2023

Mansilla

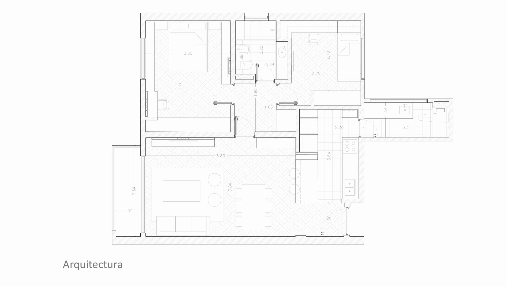
Reforma Vivienda unifamiliar
80 m2
Palermo, CABA, Argentina.

Las decisiones de diseño clave en esta reforma fueron cortar la circulación que existía desde las habitaciones al lavadero, generando más espacio de guardado, tanto para el sector de la cocina como para el hall distribuidor de las habitaciones. Además de integrar la cocina al sector de comedor/living de la casa, logrando ampliar los límites espaciales, facilitando la comunicación entre estos espacios.

Optamos por un diseño interior que utiliza colores neutros y madera para transmitir armonía y amplitud. La integración de espacios, la selección cuidadosa de materiales y la atención al detalle fueron importantes para alcanzar un resultado final que combina estética y funcionalidad.

WhatsApp
+54 11 6047-1168