2024

San Isidro

Oficinas
60 m2
San Isidro, Provincia de Buenos Aires, Argentina.

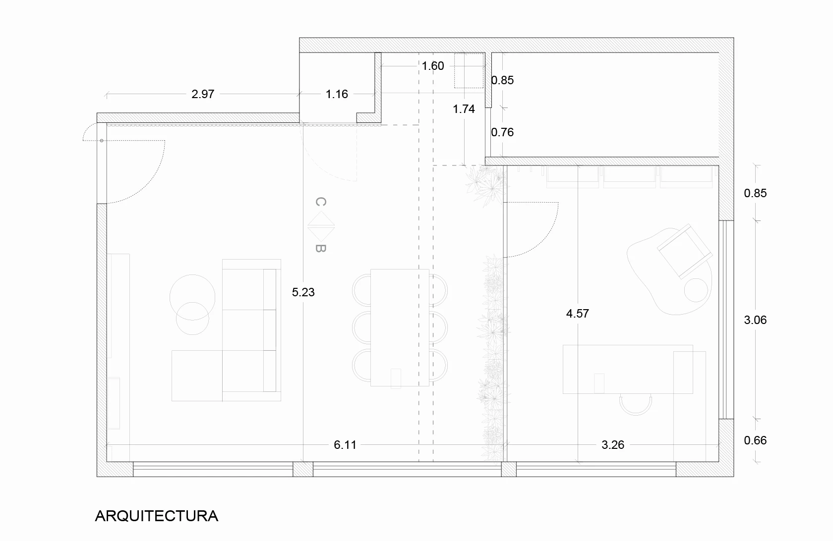
El objetivo principal del cliente era mantener las tonalidades y materiales de su oficina anterior, pero al mismo tiempo crear un espacio abierto y calmado, adecuado tanto para el trabajo diario como para recibir a clientes de alta jerarquía.
La oficina ya contaba con baño, cocina y pisos renovados.

Las necesidades que se buscaron abordar con el diseño fueron:
• Oficina personal: Un espacio cómodo con un escritorio gerencial, mueble de guardado y un sillón individual para lectura.
• Kitchenette de apoyo: Equipado con heladera, cafetera, pava eléctrica y dispenser de agua para servir a los clientes.
• Mesa de trabajo: Un área para 6 personas con acceso a enchufes.
• Living: Sector con sillon y tv para relajar entre reuniones.
• Bajo escalera: Espacio cerrado con puertas para ocultar un pequeño depósito.
• Extra: pedido especial de ocultar los cables de los AA que habian dejado a la vista.

WhatsApp
+54 11 6047-1168